水系統定壓設備使水系統運行在確定的壓力水平下。常用的定壓設備有膨脹水箱、補給水泵和氣體定壓鍍等。
膨脹水箱定壓:當空調水系統為閉式系統時,為使系統中的水因溫度變化而引起的體積膨脹給予余地,以及有利于系統中空氣的排除,在管路系統中應連接膨脹水箱。為保證膨脹水箱和水系統的正常工作,在機械循環系統中,膨脹水箱應安裝在水泵的吸和人側,水箱標高應至少高出系統最高點1m。
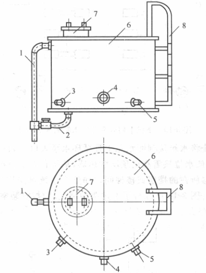
膨脹水箱定壓方式壓力穩定,系統簡單,基本不用管理。缺點是水箱應放置于系統最高處,占據一定空間。建筑物要承受水箱及水的荷重。膨脹水箱用鋼板制成圓柱體或長方體,配管如圖3-12所示。包括膨脹管、循環管、信號管、補水管(手動和浮球閥自動控制).溢流管.排污管等。箱體應保溫并加蓋板。循環管用于使水箱內的不凍結之用。在寒冷地區,為防止冬季共暖時水箱結冰,在膨脹水箱上接出一根循環管,把循環管接在理解膨脹管的同一水平管路上,使膨脹水箱中的水在兩連接點壓差的作用下,處在緩慢流動狀態。除排水管設在箱底之外,其余各管都應設在管壁以防堵塞。膨脹管連接水箱與系統,供系統水進出之用。膨脹管和循環管連接點間距可取1.5~3.0m。

溢流管用于水箱充水或系統水量過多溢流、排水之用,洪流管接到附近的排水設備上方,不允許連接到下水管道中。信號管用來檢查膨脹水箱是否存水。一般將信號管引到管理人員便于觀察和操作的排水設備上方,信號管末端有關閉閥。
排水管用于清掃膨脹水箱時,排除箱內污水用。水靠水泵的動力以及水在膨脹管和循環管中壓頭的重力作用壓力下,成為活水。越高的建筑,重力作用壓力越大,上述兩管的距離可適當減小。膨脹管、溢流管和循環管上嚴禁安裝閥門,以防誤操作使系統超壓、水溢出水箱或凍結。

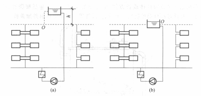
圖3-13所示為垂直下供上回式系統,其特點是只有一根回水總立管,采用穿流式水箱,將膨脹水箱連接到回水立管上部最為合適,只需滿足水箱最低水位高出上部水平回水干管O點即可。
垂直下供下回式系統將水箱接到回水總干管循環水泵入口,入整個系統都在散熱器上安裝排氣閥排氣,則水箱最低水位只需高出頂層散熱器,是所有方案中水箱安裝高度最低的,此時水箱可放在頂層散熱器所在的樓層或樓梯間,入整個系統都采用空氣管排氣,則水箱最低水位高出空氣管高點,圖3-14中綜合了上述兩種情況,應按安裝空氣管的條件來確定水箱安裝高度。






